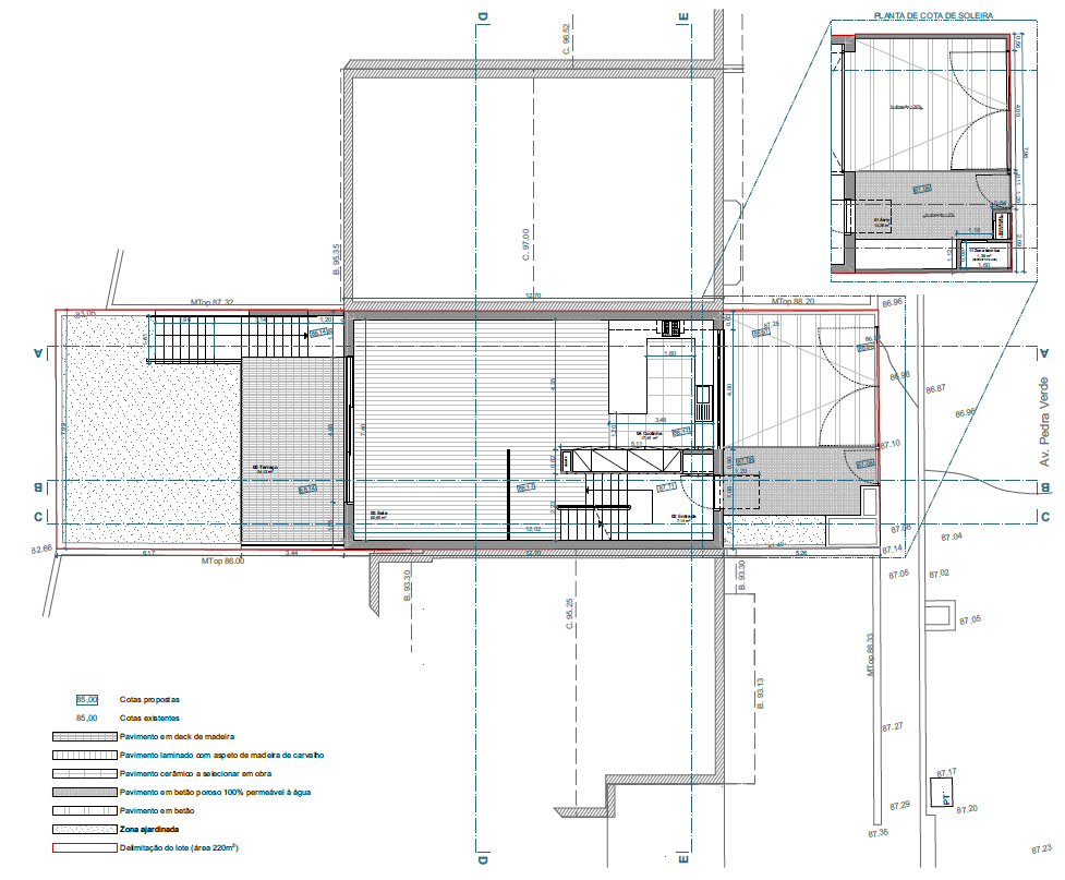
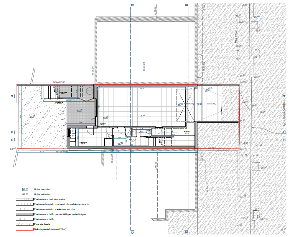
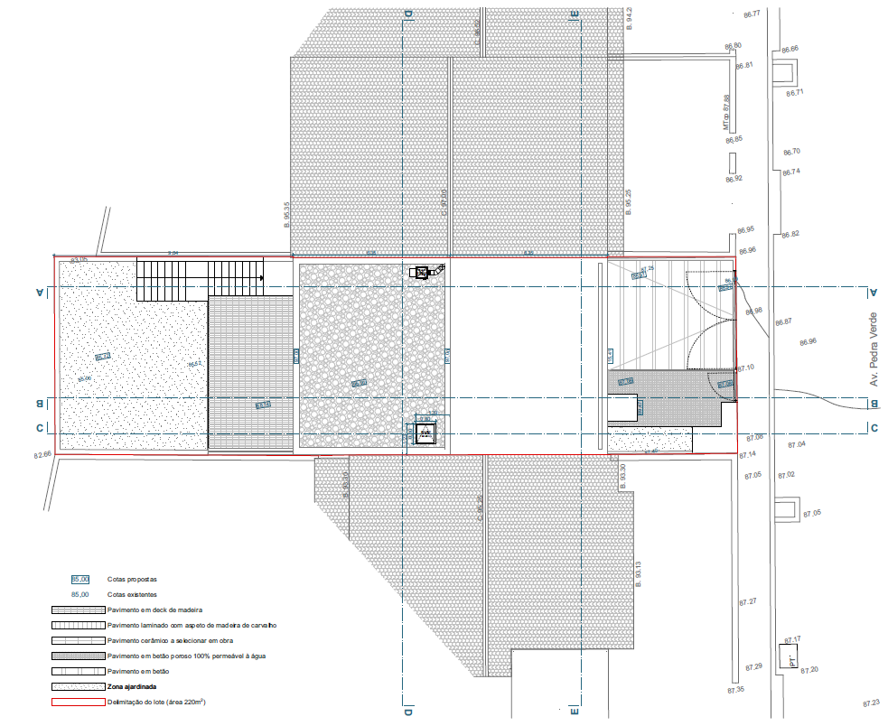
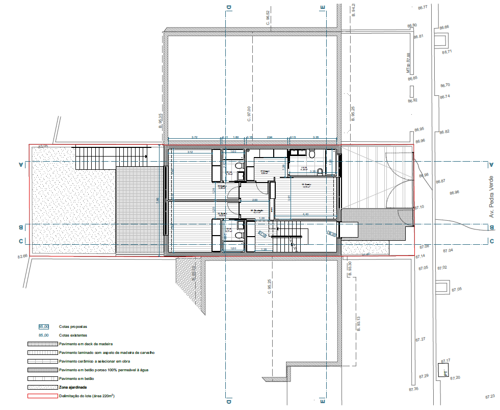
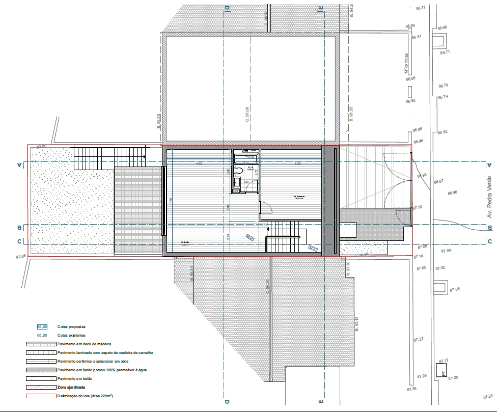
Casa Sophia

Moradia em São Mamede de Infesta

Localizada numa das zonas mais nobres de Matosinhos esta moradia é uma verdadeira obra-prima do design residencial, priorizando o conforto, eficiência energética e privacidade para atender plenamente às necessidades do proprietário